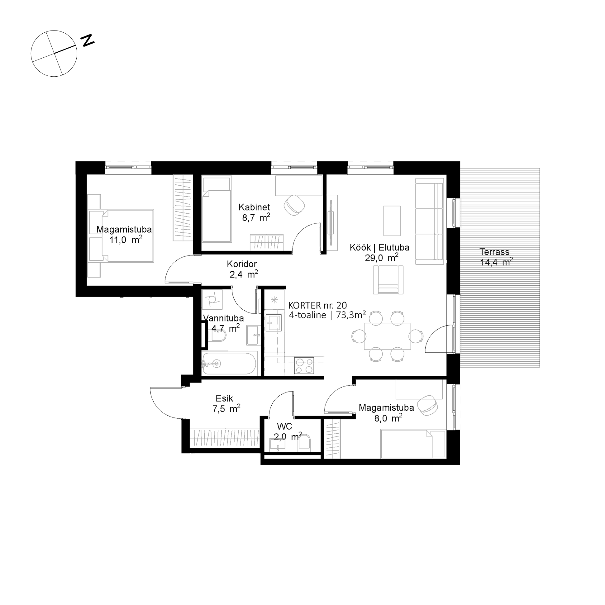
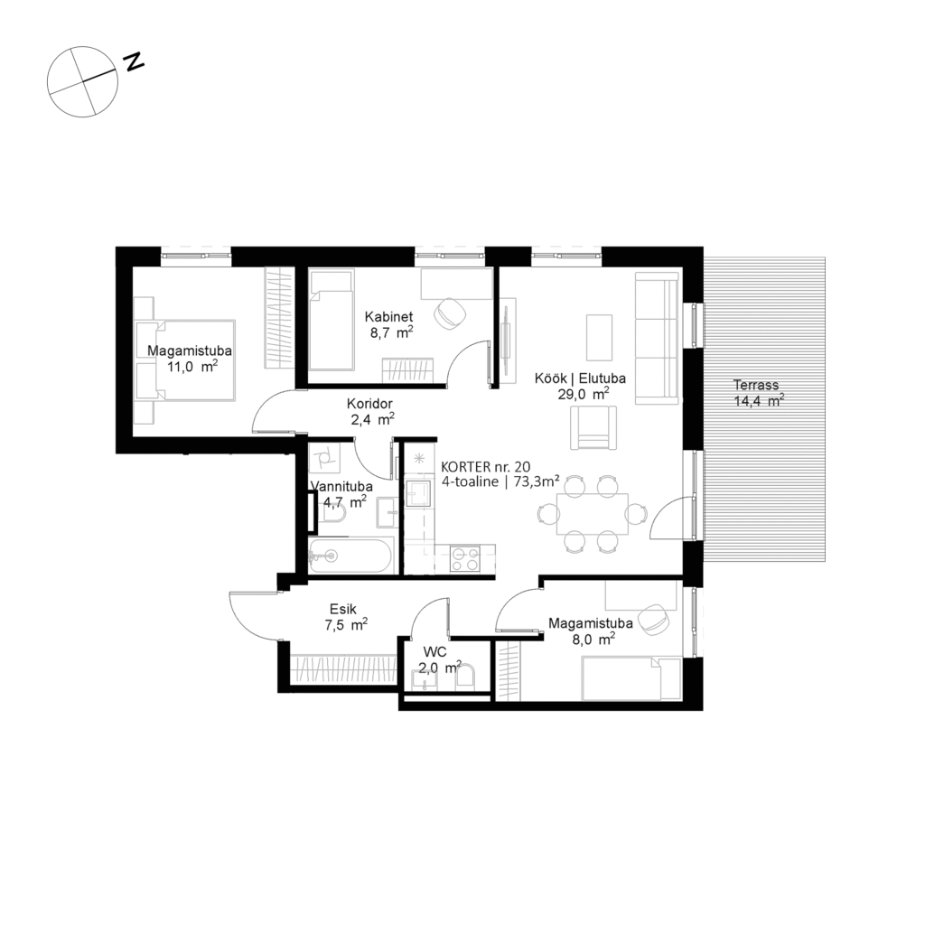
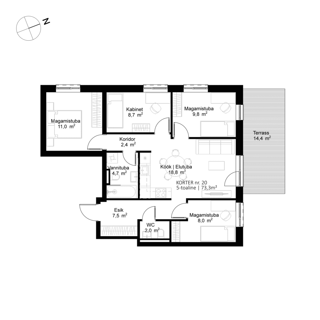
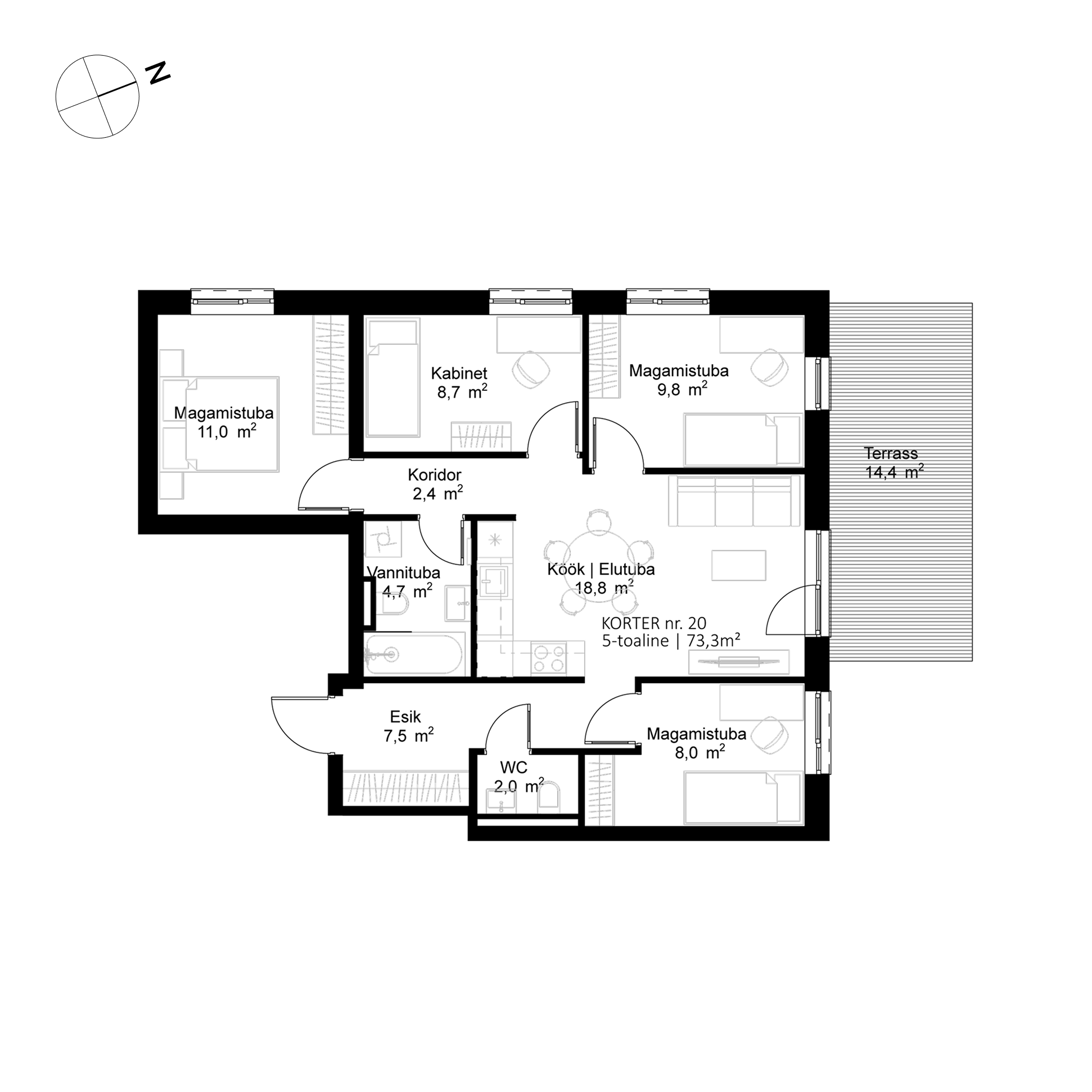
Korter 20
Korrus:
1
Tube:
5
Suurus:
72.9
Terass/Rõdu:
14.4
Vali lisad ja broneeri korter:
Valitud lisad
JÕULUHIND kokku:
188 100 €Lisad kokku:

