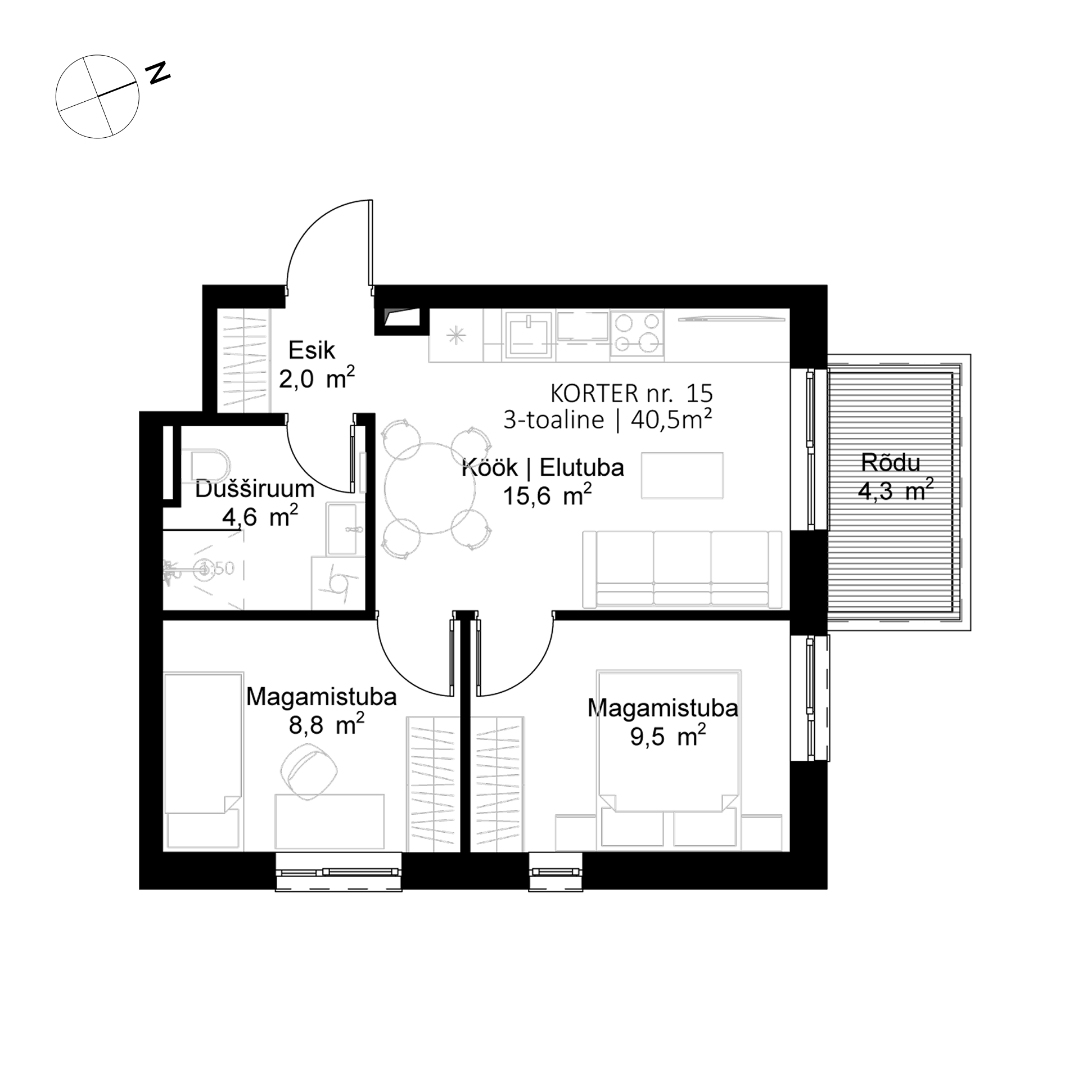
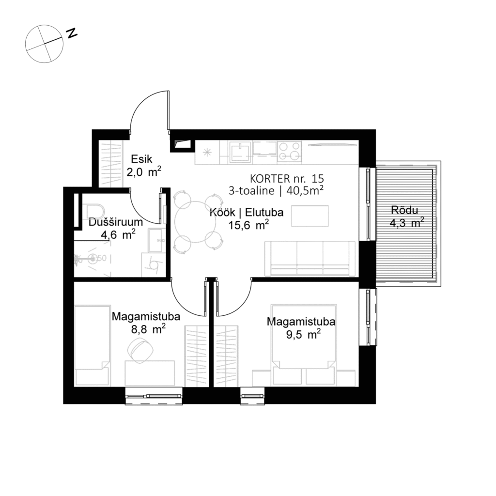
Korter 15
Korrus:
4
Tube:
2
Suurus:
40.5
Terass/Rõdu:
4.3
Vali lisad ja broneeri korter:
Valitud lisad
JÕULUHIND kokku:
134 100 €Lisad kokku:

