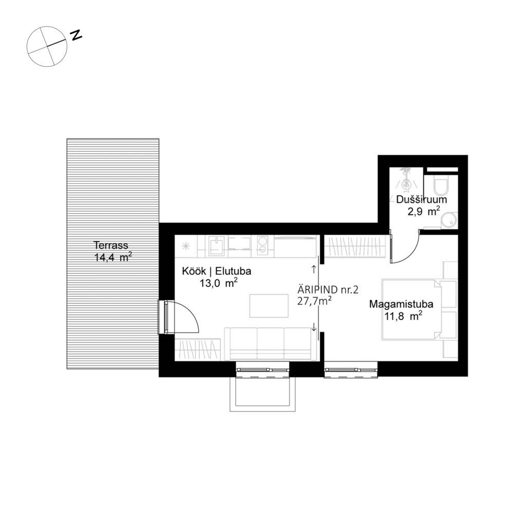
Korter 2
Korrus:
1
Tube:
1
Suurus:
28.1
Terass/Rõdu:
7
Vali lisad ja broneeri korter:
Valitud lisad
Hind kokku:
86000 €Lisad kokku:

