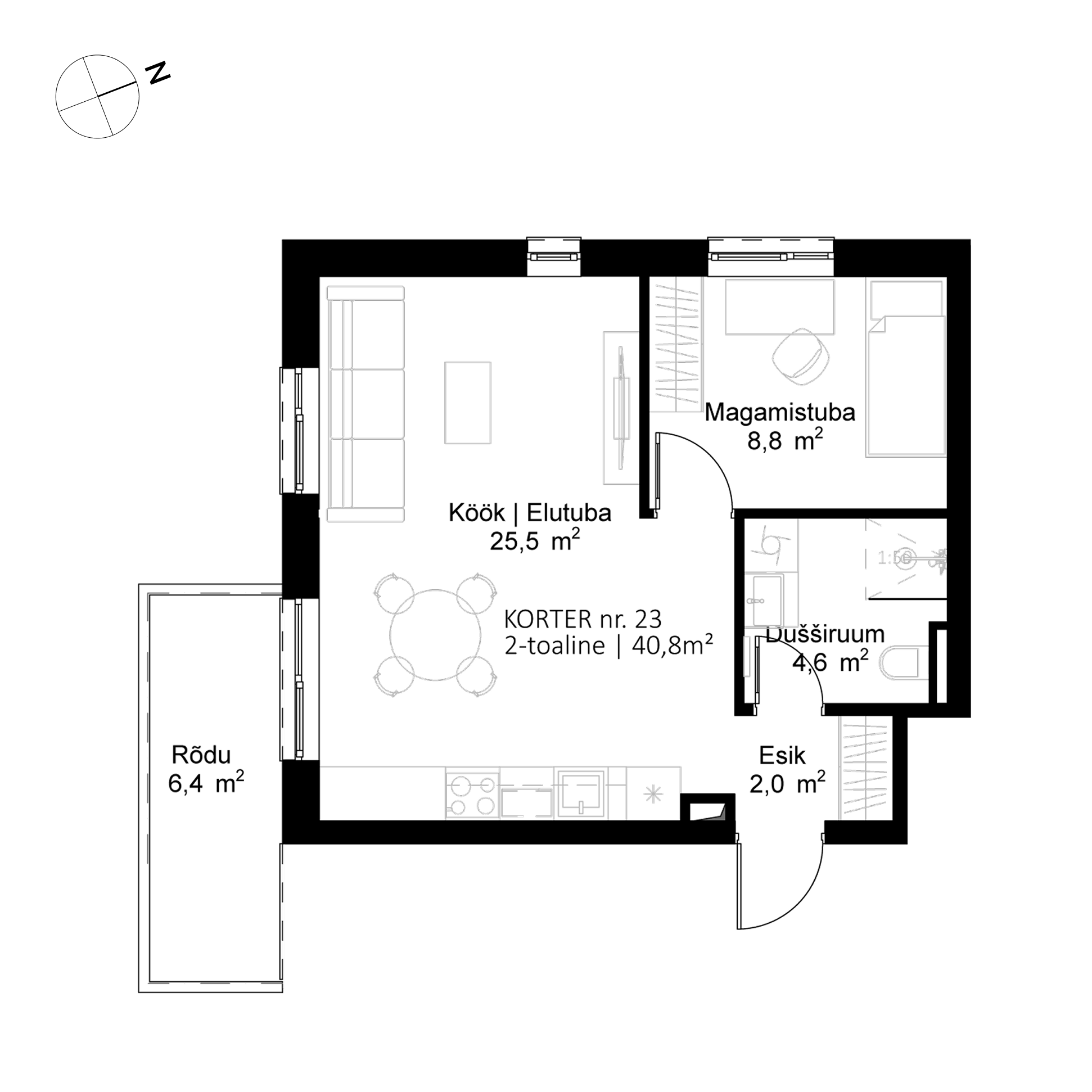
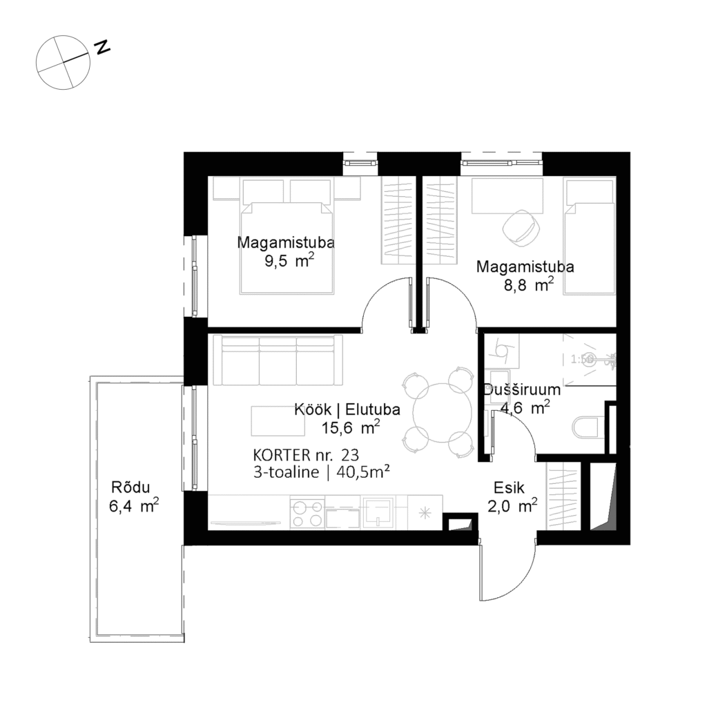
Korter 23

Korrus: 2
Tube: 2
Suurus: 40.5
Terass/Rõdu: 6.4

Vali lisad ja broneeri korter:

Planeering:

Parkimine ja panipaik:

Valitud lisad

Hind kokku:

147000 €

Lisad kokku:

Võtke meiega ühendust

Meie maaklerid on alati valmis vastama teie küsimustele ja andma täiendavat teavet.
Arendab
Müüb
Kodulehe pildid on illustratiivsed ja võivad erineda lõplikust elukeskkonnast. Viimistlusmaterjalide või toodete tarnimise probleemide korral on arendajal õigus neid samaväärsetega asendada. Arendajal on ka õigus hindu muuta.

[Korter]

Lisainfo

Panipaiga hind alates 1500 €

Toalisuse muutmine

4-toaline (62,2 m²) → 3-toaline – hind vastavalt pakkumisele
3-toaline (40,5 m²) → 2-toaline – 7000 € hinnast maha
2-toaline (40,5 m²) → 3-toaline – 7000 € hinnale lisaks